米兰网页版 MTA400 三轴力传感器
类型:通用型
型号:MTA400
行业:雪鞋测试、电阻点焊、软管膨胀压力测量
型号:MTA400
行业:雪鞋测试、电阻点焊、软管膨胀压力测量




| 量程 | 1112(Fx、Fy)、2224(Fz) N | 
| 非线性 | ±0.25% of RO | 
| 迟滞性 | ±0.25% of RO | 
| 额定输出(Fx,Fy) | 1.5 mV/V | 
| 额定输出(Fz) | 0.75 mV/V | 
| 激励 | 18 | 
| 输入桥路电阻 | 253 Ohm nom | 
| 输出桥路电阻 | 700 Ohm nom | 
| 绝缘电阻 | ≥500 MOhm @ 50 VDC | 
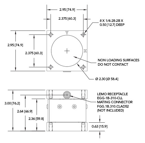
| 电缆 | 10针LEMO®插座EGG.1B.310.CLL | 
| 重量 | 907 g | 
| 过载保护 | 150% of RO | 
| 材质 | 铝合金 | 




 电话020-85262155
电话020-85262155 邮箱sales@omgl.com.cn
邮箱sales@omgl.com.cn